

艺术的伟大意义,在于它能显示人的真正感情,内心生活的奥秘和热情的世界。——罗曼·罗兰

随着现代城市资源配置与服务,从聚拢向分散化、碎片化转变,空间开始复合更多的需求功能,新的生活场景里空间的体系被重构,抛开城市杂乱的抒怀,回归私人空间定义。在衢江之畔,我们通过设计赋能江南婉约的人文气质,回归本真,将空间个性彻底释放。

作为商办空间的打造,一家企业的创始人,业主以高端简约的现代风格要求空间的气质,同时满足业主接待朋友,品茶、收藏以及高尔夫运动的功能需求。因此,此项目的设计,经由化繁为简、解析设计语言,结合居家空间的理性,将礼、宴、赏、乐、享元素以理性形态分区域投放,作为每层的功能特点;从功能分区入手,又根据地域文化提取茶、瓷、渔、帆、花这五大设计元素,多层次文化注入空间,承载人们对于未来生活方式的想象,更需具备一定的开放性,从此展开中西方交融的人文体验。

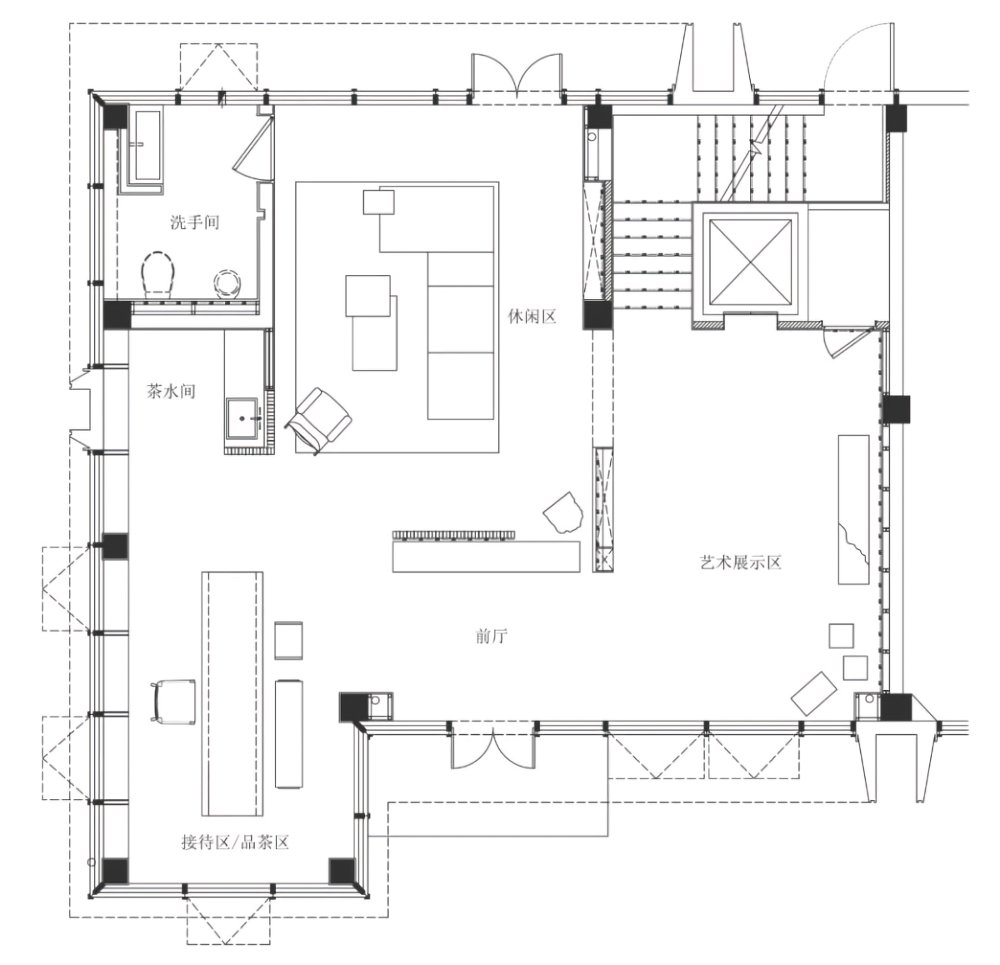
来到首层开门见山凸显整个项目的定位特征,明显感受私人会所气息。此处的功能以品茶、洽谈、艺术展陈为主。

洽谈区的莹白瓷挂件脱离平庸,沿用了婺州窑的雕刻技艺,饰之以极具民族特色的浮雕、刻花工艺;造型上,力求巧雅秀丽,给人以清新、神化之美感,与生机勃勃的树影形成对偶

茶室体现了江南人的含蓄在此把简约的平淡之味,无限的向着深远的审美思想延续开来。寻茶香而入室,柜体线条简单明了,藏于柜上艺术家陶瓷器皿,其灵感来自英国海岸线,像是流动的潮汐。




艺术展陈区,中国当代艺术家的陶艺作品,保留了自然精神世界里的一丝慰藉,无形之中,空间美学别具一格的气质在此悠然浮现。以礼相邀,约三五好友,聚于雅室,思大业品茶香,情寄于家室一盏茗。




食之有味人生百态,空间的转换,需有触发人的感官变换的渐进过程。二层以“宴”开启宴席之乐,空间通过动线设计拉住了至外而入的疾尘步伐,简约的设计让空间更具质感。整个布置形式也更开放、更具包容性。





休息区围合式组合,让宾客更自由、更舒适,西式壁炉的出现增添了一丝聚会氛围。沙发上方的瓷板画由景德镇陶艺家创作,抽象自然龟裂的纹理似山水似潮汐。


具备12人的就餐桌满足餐宴的功能,想象宾客们的欢声笑语,此时此景美妙绝伦。观景阳台的松更增添一丝古韵,凸显出文化特征。空间里每一件配饰、每一件家具都以特定的符号在空间中相互成就交融协奏,每一处设计的呈现都蕴藏着出色的审美品位,让空间拥有特定的价值体验。



三层在满足业主需求的同时,展现开放与自由,达到一种玩赏的状态。低矮、低靠背的沙发家具,并增加落地灯设置点光源,将人的视觉重心下移,更多的强调人的舒适感受与谈话所需的静谧氛围。


高尔夫、休闲阳台与健身区秩序井然,增加更多生活仪式感,时时呼应整体的联动。

业主的品味体现于收藏,在负一层处置入多样形态的品藏区,收藏家们在负一层会晤,享受着此时此刻的杯酒人生。

较之前三层形成的商务休闲,负一层更具某种情感上的递进,软装通过酒柜的排布陈列、德州扑克与品酒场景,摩登时尚让此空间氛围更放松更享受。

车库摆放着业主收藏的甲壳虫复古车,墙面机械零件工具的摆放。整个空间优雅的古典元素与富有灵气的现代气质,均予以实现。

顶层是以“乐”为阵营的城市营地。星空露营、户外聚餐、吧台、卡座等等功能都出现在露台,享受更多体验方式更多乐趣。在这里可以把平时失去的自然美好都找回来,浪漫夏夜里,告别城市的喧闹与浮躁,亲近星空的静谧与美好。

在整个设计过程中,如果说硬装形成了空间,那么软装则为空间加入了更多维度,建立了情感的链接,这个项目隐匿着一种理想化的艺术生活的初心,依据内在的秩序和节奏,并以合理的设计手段进行了高度完整的实现,基于此,静谧、流动与细腻,交替出现。






- 项目信息
- 项目名称:衢州·四方会所
- 项目地址:浙江衢州
- 业主名称:阳光城集团
- 业主团队:林晓东、顾丹、许文婕
- 硬装设计:飞檐设计
- 软装设计:兰舍设计
- 项目面积:484.2478630㎡
项目摄影:十观

沙千帆,飞檐设计、兰舍设计的创始人及创意总监。16年设计及管理经验,服务于国内各大房地产公司、商业空间、高端私人客户。